Používame cookies

Súbory cookie a ďalšie technológie sledovania používame na zlepšenie vášho zážitku z prehliadania našich webových stránok, na to, aby sme vám zobrazovali prispôsobený obsah a cielené reklamy, na analýzu návštevnosti našich webových stránok a na pochopenie toho, odkiaľ naši návštevníci prichádzajú. Viac info

 

Na predaj rodinný dom 216m2 iba 15 min. od Košíc

Interné ID: 260015
Obec: Lemešany
Okres: Prešov
Kraj: Prešovský kraj
Druh: Domy
Typ: Predaj
Typ domu: Rodinný dom
182 500 €

Popis nehnuteľnosti

Tomisreal Vám so súhlasom majiteľa ponúka na predaj čiastočne podpivničený 4 izbový rodinný dom so samostatnou bytovou jednotkou / 1 izbový byt / v obci Lemešany, vzdialenej len 15 minút autom z Košíc aj z  Prešova. 

Rodinný dom je po rekonštrukcii, nachádza sa v zastavanej časti obce v tichej ulici. Stojí na mierne svahovitom pozemku o výmere 905m2, na ktorom sa nachádza studňa a ovocné stromy. 

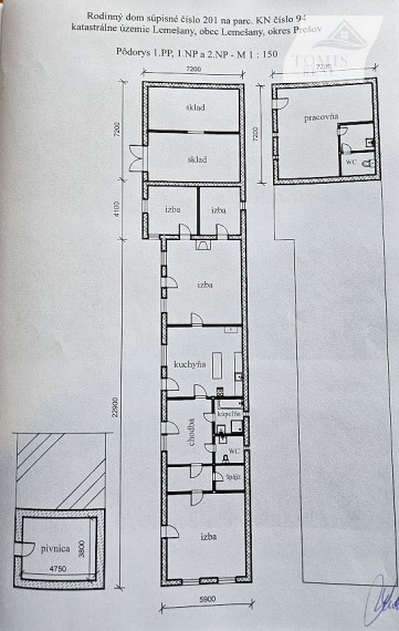
Zastavaná plocha:  podzemné podlažie 21,66m2, 1 nadzemné podlažie 216,47m2, 2 nadzemné podlažie 51,84m2. 

Rodinný dom má 3 podlažia: PP, kde sa nachádza pivnica, 1 NP, kde sa nachádzajú 4 izby, kuchyňa, kúpeľňa, samostatné WC, komora, 3 NP, kde sa nachádza samostatná bytová jednotka / 1 izbový byt/, kde je veľká miestnosť / miesto pre kuchyňu, chodbu, izbu /, kúpeľňa, WC, vstup na povalu, kde je možnosť vytvorenia ďalšej obytnej časti.

Rodinný dom bol postavený v roku 1939. V roku 1960 bola zo severnej strany k domu prístavná prístavba. V roku 2010 bol do domu zavedený plyn. Od roku 2013 - 2016 v rodinnom dome prebehla rekonštrukcia: , nové podlahy, zavedená voda, odpad, nová elektroinštalácia, elektrické teplovodné podlahové kúrenie + kotol Junkers / kuchyňa, izba, chodba, kúpeľňa, WC, komora /, bojler, plynový kotol, nové radiátory / chodba, prístavba / novo vybudovaná  kúpeľňa, WC, keramické dlažby,obklady, plávajúca veľkoplošná laminátová podlaha, plastové okná, nové omietky. V obývacej izbe bol postavený nový krb. V prístavbe bol rekonštruovaný krov, strešná krytina, rozvod ELI, priečky, bleskozvod.

Stavebný materiál: tehla-palena, nepálená, kameň, sadrokartón / priečka v chodbe pri vstupe/, strecha - plech, škridla. 

IS: voda - vlastná studňa, obecná na ceste pred domom, odpad - žumpa, elektrina 220 - 230, plyn. 

Vďaka prístavbe - novovytvorenej bytovej jednotke je rodinný dom vhodný na dvojgeneračné bývanie ale aj pre rodinné bývanie a podnikanie. 

Pozemok je celý oplotený s pekný výhľadom do okolia, vstup je z obecnej asfaltovej cesty.

Občianska vybavenosť v obci je veľmi dobrá: MŠ, ZŠ, zdravotné stredisko, lekáreň, potraviny Fresh,Milk Agro, Coop Jednota, večierka, ihriská, požiarnici, kostol a pod. Dopravné spojenie veľmi dobré, Autobusom smer Košice aj Prešov, autom po diaľnici aj starej ceste.

Cena je konečná a zahŕňa všetky náklady spojené s prevodom nehnuteľnosti vrátane financovania v našom hypotekárnom centre.

Pre bližšie informácie ma neváhajte kontaktovať na tel. čísle: +421 948 291 316 Iveta Hanzely

 

Vlastnosti

Status:
aktívne
Vlastníctvo:
osobné
Plocha pozemku:
905 m2
Typ zeme:
mierne svahovitá
Teritórium:
Intravilán
Šírka pozemku:
16 m
Dĺžka pozemku:
56,5 m
Úžitková plocha:
216.47 m2
Zastavaná plocha:
216.47 m2
Stav:
čiastočne prerobený
Počet izieb:
4
Energetický certifikát:
nie je k dispoziícií
Energetická náročnosť budovy:
Klasické materiály
Typ budovy:
zmiešané
Terasa:
áno
Špajza:
áno
Sklad:
áno
Rok výstavby:
1960
Rok poslednej rekonštrukcie:
2016
Rok kolaudácie:
1960
Počet poschodí od prízemia vyššie:
2
Celková plocha:
905 m2
Terasa plocha:
5 m2
Počet terás:
1
Orientácia:
juh
Inžinierske siete:
áno
Voda:
áno
Elektrika:
áno
Plyn:
áno
Voda - na pozemku:
áno
Voda - na pozemku - studňa:
áno
Elektrika - na pozemku:
áno
Elektrika - na pozemku - 230 V:
áno
Plyn - na pozemku:
áno
Vykurovanie - centrálne:
áno
Vykurovanie - podlahové:
áno
Internet:
áno
Status:
aktívne
Vlastníctvo:
osobné
Plocha pozemku:
905 m2
Typ zeme:
mierne svahovitá
Teritórium:
Intravilán
Šírka pozemku:
16 m
Dĺžka pozemku:
56,5 m
Úžitková plocha:
216.47 m2
Zastavaná plocha:
216.47 m2
Stav:
čiastočne prerobený
Počet izieb:
4
Energetický certifikát:
nie je k dispoziícií
Energetická náročnosť budovy:
Klasické materiály
Typ budovy:
zmiešané
Terasa:
áno
Špajza:
áno
Sklad:
áno
Rok výstavby:
1960
Rok poslednej rekonštrukcie:
2016
Rok kolaudácie:
1960
Počet poschodí od prízemia vyššie:
2
Celková plocha:
905 m2
Terasa plocha:
5 m2
Počet terás:
1
Orientácia:
juh
Inžinierske siete:
áno
Voda:
áno
Elektrika:
áno
Plyn:
áno
Voda - na pozemku:
áno
Voda - na pozemku - studňa:
áno
Elektrika - na pozemku:
áno
Elektrika - na pozemku - 230 V:
áno
Plyn - na pozemku:
áno
Vykurovanie - centrálne:
áno
Vykurovanie - podlahové:
áno
Internet:
áno

Informatívna úverová kalkulačka

Pozrieť na mape

Maklér

Iveta Hanzely

Iveta Hanzely

realitný maklér

  • Slovensky
  • Česky

Radi Vám poradíme

Podobné nehnuteľnosti